 
			 
				 
	 
		Zona Via Vittime Civili - Viale Candelaro
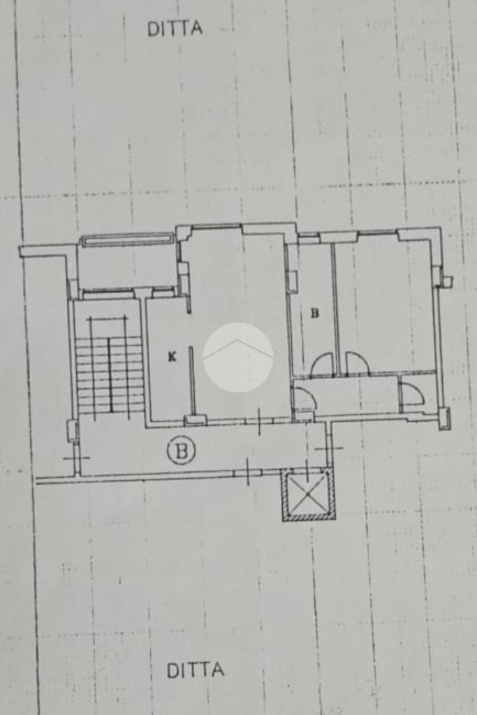
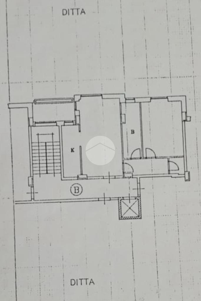
In zona centrale e ben servita, proponiamo in vendita luminoso appartamento situato al settimo piano di uno stabile dotato di ascensore.
L’immobile si presenta in buono stato generale, con pavimentazione unica in ceramica, infissi in alluminio con doppio vetro, porte interne in legno e impianti in ottime condizioni.
Si tratta di una soluzione ideale per chi è alla ricerca di un’abitazione in posizione strategica, pronta da vivere subito, oppure per chi desidera un investimento sicuro.
Completa la proprietà un posto auto in cortile recintato.
Libero subito.
Seguici su Facebook cliccando 'mi piace' sulla pagina Agenzia Tecnorete Foggia, su instagram sulla pagina Tecnorete_foggia o contattaci attraverso il nostro canale Whatsapp al numero 375.5271918 per avere maggiori informazioni sui nostri immobili.
Scarica gratuitamente anche l'App Tecnocasa sul tuo smartphone per essere sempre aggiornato sulle nostre proposte di vendita e locazione.
Se hai bisogno di una consulenza reddituale per accedere ad una richiesta di mutuo possiamo esserti d'aiuto poichè è possibile, previo appuntamento, direttamente nella nostra agenzia, incontrare un Collaboratore di Kiron Partner SpA la società di mediazione creditizia del Gruppo Tecnocasa.
LA CONSULENZA E' GRATUITA.
Prezzo ridotto di €1 (3%%)
Ti interessa visionare l'immobile?